Skip to main content

PROYECTOS ARQUITECTÓNICOS

Casa

Catamarca

2019

Lugar: Tepoztlán, Morelos

Colaboración: Marysol Uribe, Alexandra Valverde, León Staines Díaz

Fotografía: Benjamín Ibarra

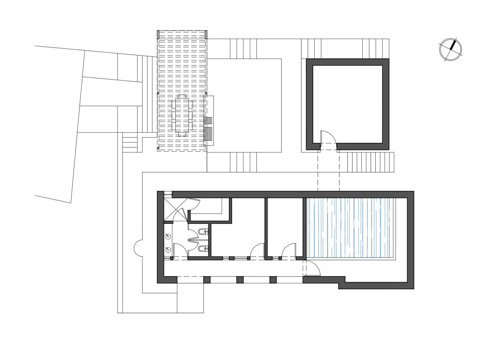
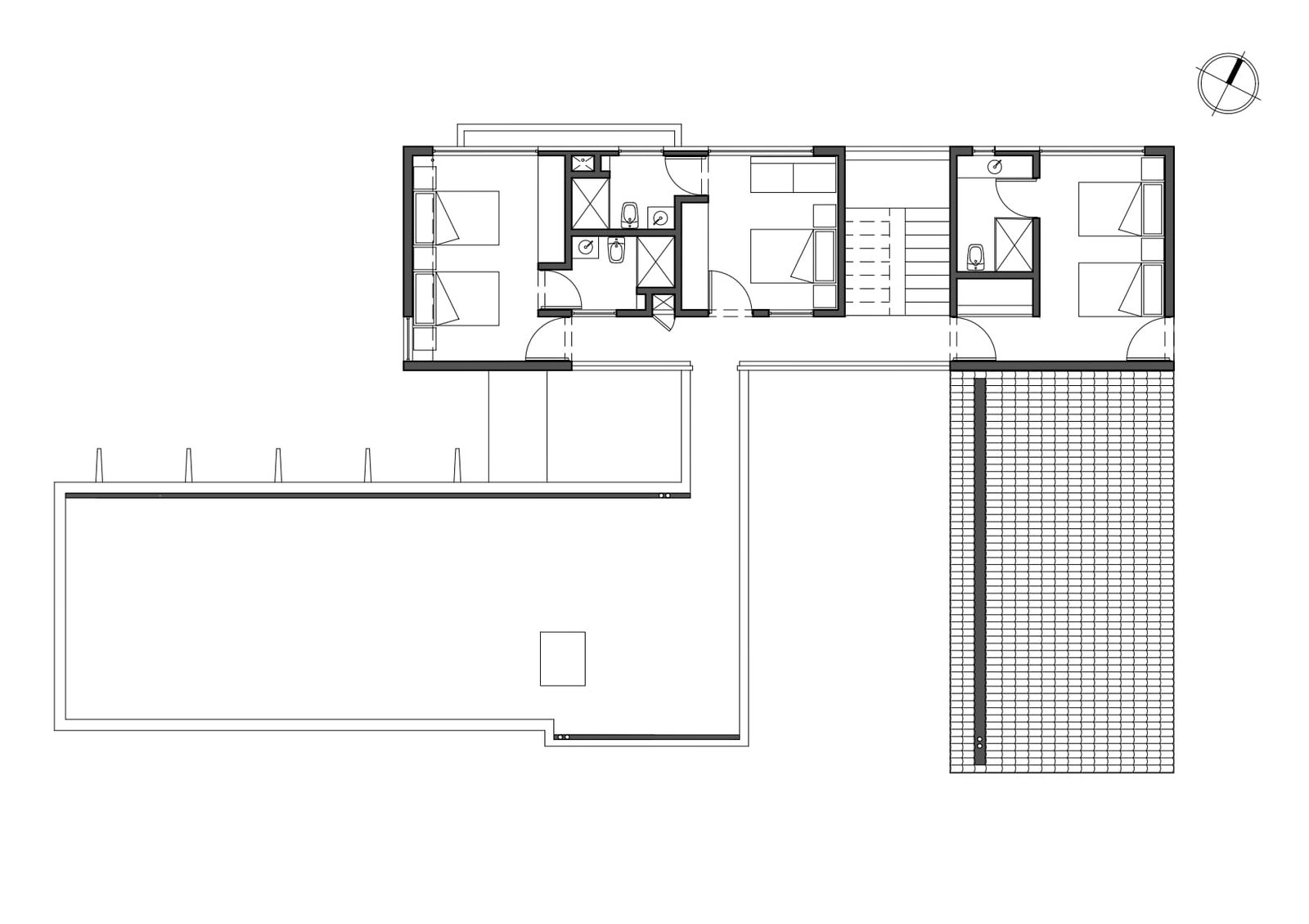
Localizada en una locación maravillosa en las faldas del Cerro de Meztitla, se encuentra la casa Catamarca (de los vocablos quechuas: “Cata” que significa “ladera” y “marca” equivalente a “Fortaleza”).
El programa debía ser flexible a ser usado por la familia nuclear y sus invitados de forma independiente, aunque manteniendo unidad compositiva. La distribución se resolvió con tres volúmenes yuxtapuestos, permitiendo el contacto con el exterior mientras se adapta a una topografía escarpada. Las vistas de la vivienda fueron pensadas para aprovechar las privilegiadas vistas de esta locación.
Trabajamos integrando los materiales y el conocimiento local en el proyecto. Además, el proyecto recupera el agua de lluvia en una cisterna con capacidad de 60,000 litros y tiene un sistema de tratamiento de aguas negras para utilizarse para el riego.

Located in a marvelous setting at the foothills of Cerro de Meztitla, stands the Catamarca House (from the Quechua words: “Cata” meaning “slope” and “marca” meaning “fortress”).  

The program needed to be flexible for use by the nuclear family and their guests independently while maintaining compositional unity. The layout was solved using three juxtaposed volumes, allowing for contact with the exterior while adapting to a steep topography. The views from the house were planned to take advantage of the privileged vistas of this location.  

We worked by integrating local materials and knowledge into the project. Additionally, the project collects rainwater in a 60,000-liter cistern and has a blackwater treatment system to be used for irrigation.

COPYRIGHT © 2024 LUGAR ABIERTO. TODOS LOS DERECHOS RESERVADOS. DESARROLLADO CON ❤️ POR MANIFIESTO DIGITAL.