Skip to main content

PROYECTOS ARQUITECTÓNICOS

Casa

Maspalomas

2013

Lugar: Monterrey, Nuevo León

Colaboración: Jorge H. Salinas, León Staines Díaz

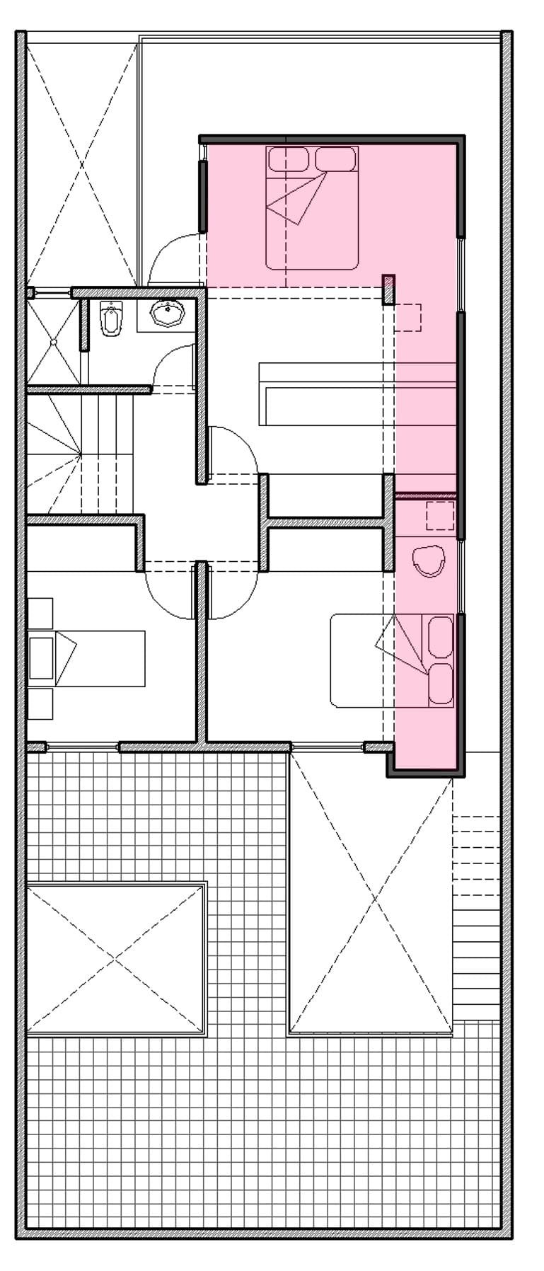
Este proyecto partía de una limitación presupuestal que permitía solo el trabajo con materiales en seco por su economía y rapidez de construcción. El reto consistió en aprovechar el 100% de lo ya construido para proceder a realizar unas perforaciones a los muros existentes para habilitar la ampliación de la Planta Alta de la vivienda. Por otro lado, se realizó un proyecto de habilitación de otras secciones de la casa para articular las áreas abiertas y terrazas que ahora están subutilizadas.

This project began with a budgetary constraint that only allowed for the use of dry materials due to their cost-effectiveness and quick construction. The challenge was to make full use of the existing structures by drilling into the existing walls to enable the expansion of the upper floor of the house. Additionally, a project was undertaken to develop other sections of the house to connect the open areas and terraces that are currently underutilized.

COPYRIGHT © 2024 LUGAR ABIERTO. TODOS LOS DERECHOS RESERVADOS. DESARROLLADO CON ❤️ POR MANIFIESTO DIGITAL.