La Luz
1126
2022
Lugar: Monterrey, México
Colaboración: Edith Cervántes, León Staines Díaz
Distinciones: 1er lugar categoría Vivienda Colectiva Vertical Bienal NL 2022
Ganador Absoluto Bienal NL 2022
2do lugar categoría Vivienda Social, Premio Obras Cemex 2022
Seleccionado en Mies Crown Hall Americas Prize 2022
Gráficos: Edith Cervántes
Fotografía: Recording Architecture-Paco Álvarez
En 1985 vivían en el Centro de Monterrey 115,000 personas, hoy vivimos menos de 23,000. Como respuesta, han abundado opciones de densificación descontextualizada a la escala y dinámicas de la zona. Nuestro proyecto inserta a la conversación una forma de densificar propia del lugar.
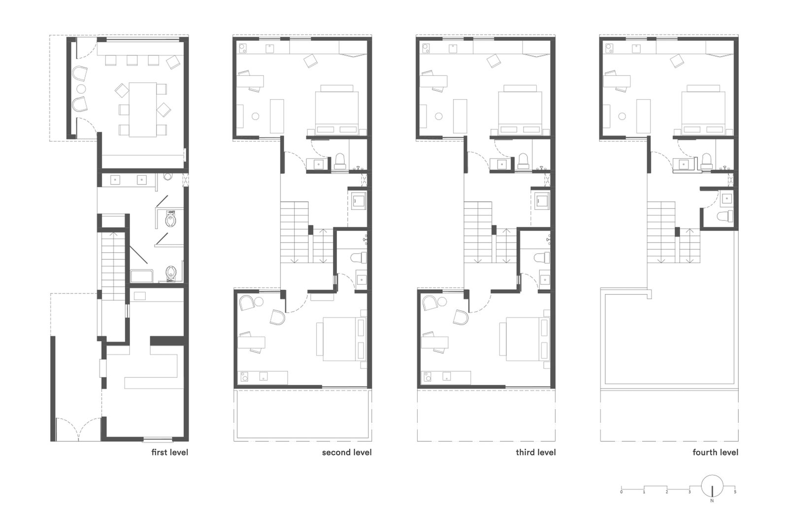
La Luz 1126 un proyecto experimental de vivienda en el centro histórico de la ciudad de Monterrey. Se trata de un ensayo arquitectónico que busca responder a los retos de la vivienda en zonas consolidadas e históricas de la ciudad, alejándose de la mera generación de ganancias y enfocándose en un equilibrio entre lo comercial y las capacidades que un barrio tradicional debe de tener. La obra consta de 5 viviendas y una planta baja comercial que funciona como “ojos a la calle”.
La Luz 1126 es un proyecto que entiende su rol en el contexto geográfico donde está inserto. La planta baja activa pretende convertirse en un punto de reunión en el barrio. El programa interno se distribuye a través de plataformas de concreto conteniendo los departamentos que se elevan en medios niveles, hasta coronar en dos terrazas que permiten apreciar la vista panorámica del Centro de Monterrey y sus montañas.
El retranqueo del edificio reafirma el respeto a la escala y contexto histórico de las construcciones de la primera mitad del siglo XX que le rodean. Se decidió exponer la nobleza de materiales como el ladrillo, que juega un papel protagónico y multifacético en esta obra. En algunos puntos, el ladrillo sirve como superficie, en otros, configura espacios internos creando contraste de los elementos estructurales. En la terraza, se le coloca lateralmente para crear una celosía que permite continuar las vistas a la ciudad. El ladrillo es la unidad base y el único material utilizado para los muros.
In 1985, 115,000 people lived in Monterrey’s downtown. Today, there are less than 23,000 residents. In response, there has been an abundance of decontextualized densification projects from scale and dynamics of the area. Our project contributes to the conversation by introducing a suited densification specific to the neighborhood’s capacities.
La Luz 1126 is an experimental housing project in the historic center of Monterrey. It seeks to address the challenges of housing in consolidated and historic areas of the city, moving away from mere profit while balancing commercial aspects and qualities a traditional neighborhood. The project consists of five residences and a commercial ground floor that serves as “eyes on the street.”
This project reflects its role in the geographical context. The active ground floor aims to become a gathering point in the neighborhood. The internal program is distributed through concrete platforms containing the housing units that rise in half-levels, culminating in two terraces that offer panoramic views of Monterrey and its mountains.
The setback of the building reaffirms respect for the scale and historical context of the constructions from the first half of the 20th century that surround it. The decision to expose the nobility of materials such as brick plays a leading and multifaceted function. In some areas, brick serves as a surface, while in others, it shapes internal spaces, creating a contrast with structural elements. On the terrace, it is placed laterally to create a lattice that allows continuing views of the city.
COPYRIGHT © 2024 LUGAR ABIERTO. TODOS LOS DERECHOS RESERVADOS. DESARROLLADO CON ❤️ POR MANIFIESTO DIGITAL.